Помощь студентам дистанционного обучения: тесты, экзамены, сессия
Помощь с обучением
Оставляй заявку - сессия под ключ, тесты, практика, ВКР

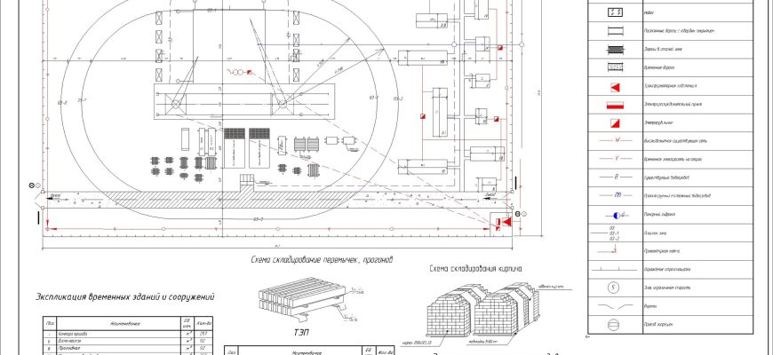
Пример расчета строительного генерального плана, в программе Автокад с пояснительной…

Материалы
Пример работы
Пример расчета строительного генерального плана, в программе Автокад с пояснительной запиской в Ворде.
забирай на стену, чтобы не потерять

#сгп #ппр #пгс #dwg #технология #чертеж #автокад

Примеры работ по строительным специальностям:
Оцените статью
Дипломные, курсовые проекты ПГС на заказ. Решение задач, экзамены, расчеты и контрольные
Добавить комментарий

  1. Мехмет

    Добрый день, мне надо написать ВАР для РАНХиГС, срок 6 дней, готов план и первая глава. Требуется сама ВАР, презентация и текст выступления. Прошу пишите в мессенджеры или на почту, отвечать не всегда могу на звонки.

    Ответить
    1. Татьяна автор

      Мехмет, здравствуйте! Мы можем Вам помочь. Прошу Вас прислать всю необходимую информацию на почту и написать что необходимо выполнить.
      Я посмотрю описание к заданиям и напишу Вам стоимость и срок выполнения. Информацию нужно прислать на почту info@kapproekt.ru

      Ответить
  2. Антон

    Пройти тестирование по 4 предметам на вступительных экзаменах.

    Ответить
    1. Татьяна автор

      Антон, здравствуйте! Мы можем Вам помочь. Прошу Вас прислать всю необходимую информацию на почту и написать что необходимо выполнить.
      Я посмотрю описание к заданиям и напишу Вам стоимость и срок выполнения. Информацию нужно прислать на почту info@kapproekt.ru

      Ответить
  3. Глеб

    Здравствуйте. Подскажете сколько будет стоить сессия в РОСДИСТАНТ ТГУ ПГС:
    1. Системы автоматизированного проектирования в строительстве
    Сдано заданий: 0 из 5
    2. Сопротивление материалов 2
    Сдано заданий: 0 из 24
    3. Сопротивление материалов 1
    Сдано заданий: 0 из 19
    4. Технологические процессы в строительстве
    Сдано заданий: 0 из 4
    5. Технология конструкционных материалов
    Сдано заданий: 0 из 41
    6. Водоснабжение и водоотведение
    Сдано заданий: 0 из 2
    7. Производственная практика (практика по получению профессиональных умений и опыта профессиональной деятельности)
    Сдано заданий: 0 из 2
    8. Строительные машины и механизмы
    Сдано заданий: 0 из 7
    9. Учебная практика (изыскательская практика) СТРбд, СТРбп, СТРбз
    Сдано заданий: 0 из 2
    10. Строительная механика
    Сдано заданий: 0 из 16
    11. Конструкции жилых зданий
    Сдано заданий: 0 из 10

    Ответить
    1. Татьяна автор

      Глеб, здравствуйте! Мы можем Вам помочь. Прошу Вас прислать всю необходимую информацию на почту и написать что необходимо выполнить.
      Я посмотрю описание к заданиям и напишу Вам стоимость и срок выполнения. Информацию нужно прислать на почту info@kapproekt.ru

      Ответить
  4. Руслан

    Здравствуйте. Подскажите, пожалуйста, в вашем центре есть такая услуга, как выполнять задания (контрольные, лабораторные) за обучающегося (Институт: СибГУТИ, Специальность Техносферная безопасность) по следующим дисциплинам: «Медико-биологические основы безопасности жизнедеятельности», «Метрология, стандартизация и сертификация», «Мониторинг среды обитания», «Надзор и контроль в сфере безопасности», «Основы телекоммуникаций», «Правовые основы безопасности», «Физико-химические процессы в техносфере» — и отправлять выполненные задания через личный кабинет на проверку. Если такая услуга существует, подскажите, пожалуйста, стоимость.

    Ответить
    1. Татьяна автор

      Руслан, здравствуйте! Мы можем Вам помочь. Прошу Вас прислать всю необходимую информацию на почту и написать что необходимо выполнить.
      Я посмотрю описание к заданиям и напишу Вам стоимость и срок выполнения. Информацию нужно прислать на почту info@kapproekt.ru

      Ответить
  5. Андрей

    Здравствуйте, нужен отчёт по ПГС практике.

    Ответить
    1. Татьяна автор

      Андрей, здравствуйте! Мы можем Вам помочь. Прошу Вас прислать всю необходимую информацию на почту и написать что необходимо выполнить.
      Я посмотрю описание к заданиям и напишу Вам стоимость и срок выполнения. Информацию нужно прислать на почту info@kapproekt.ru

      Ответить
  6. Макар

    Требуется решить задачи по дисциплине надежность технических систем и техногенный риск.

    Ответить
    1. Татьяна автор

      Макар, здравствуйте! Мы можем Вам помочь. Прошу Вас прислать всю необходимую информацию на почту и написать что необходимо выполнить.
      Я посмотрю описание к заданиям и напишу Вам стоимость и срок выполнения. Информацию нужно прислать на почту info@kapproekt.ru

      Ответить
  7. Дмитрий

    Необходимо доработать магистерскую диссертацию в соответствии с заданием преподавателя и методическими рекомендациями.

    Ответить
    1. Татьяна автор

      Дмитрий, здравствуйте! Мы можем Вам помочь. Прошу Вас прислать всю необходимую информацию на почту и написать что необходимо выполнить.
      Я посмотрю описание к заданиям и напишу Вам стоимость и срок выполнения. Информацию нужно прислать на почту info@kapproekt.ru

      Ответить
  8. Василий

    Здравствуйте хотел бы узнать стоимость сессии под ключ. Промышленные и гражданское строительство 2 курс 1 семестр.

    Ответить
    1. Татьяна автор

      Василий, здравствуйте! Мы можем Вам помочь. Прошу Вас прислать всю необходимую информацию на почту и написать что необходимо выполнить.
      Я посмотрю описание к заданиям и напишу Вам стоимость и срок выполнения. Информацию нужно прислать на почту info@kapproekt.ru

      Ответить
  9. Михаил

    5 семестр. Машиностроение. (тесты, промежуточные тесты, курсовые проекты) ТГУ.
    Высшая математика 1;
    Иностранный язык 3;
    Иностранный язык 4;
    Механика 1;
    Механика 2;
    Механика 3;
    Механика 3 (курсовой проект);
    Механика 4;
    Механика 4 (курсовой проект);
    Основы гидравлики и термодинамики;
    Технология сварки плавлением.

    Цена вопроса ?

    Ответить
    1. Татьяна автор

      Михаил, здравствуйте! Мы можем Вам помочь. Прошу Вас прислать всю необходимую информацию на почту и написать что необходимо выполнить.
      Я посмотрю описание к заданиям и напишу Вам стоимость и срок выполнения. Информацию нужно прислать на почту info@kapproekt.ru

      Ответить
  10. Иван

    Нужно зайти на портал и оценить сколько выйдет сдача долгов, ПГС 4 курс в данный момент, надо закрыть 1, 2 курс.

    Ответить
    1. Татьяна автор

      Иван, здравствуйте! Мы можем Вам помочь. Прошу Вас прислать всю необходимую информацию на почту и написать что необходимо выполнить.
      Я посмотрю описание к заданиям и напишу Вам стоимость и срок выполнения. Информацию нужно прислать на почту info@kapproekt.ru

      Ответить
  11. Виолетта

    Добрый день, выполняйте ли работы по «Оборудование и технология сварочного производства»?

    Ответить
    1. Татьяна автор

      Виолетта, здравствуйте! Мы можем Вам помочь. Прошу Вас прислать всю необходимую информацию на почту и написать что необходимо выполнить.
      Я посмотрю описание к заданиям и напишу Вам стоимость и срок выполнения. Информацию нужно прислать на почту info@kapproekt.ru

      Ответить
  12. Александр

    Стоимость полного выполнения всех предметов (9 шт.) по специальности «Промышленное и гражданское строительство», 1 курс, 1 сессия? Сроки? Детали по запросу.

    Ответить
    1. Татьяна автор

      Александр, здравствуйте! Мы можем Вам помочь. Прошу Вас прислать всю необходимую информацию на почту и написать что необходимо выполнить.
      Я посмотрю описание к заданиям и напишу Вам стоимость и срок выполнения. Информацию нужно прислать на почту info@kapproekt.ru

      Ответить
  13. Елизавета

    Требуется решить 5 задач по маркшейдерии.

    Ответить
    1. Татьяна автор

      Елизавета, здравствуйте! Мы можем Вам помочь. Прошу Вас прислать всю необходимую информацию на почту и написать что необходимо выполнить.
      Я посмотрю описание к заданиям и напишу Вам стоимость и срок выполнения. Информацию нужно прислать на почту info@kapproekt.ru

      Ответить
  14. Марк

    Геодезия и дистанционное зондирование. Нужно сдать итоговый тест по прикладной геодезии.

    Ответить
    1. Татьяна автор

      Марк, здравствуйте! Мы можем Вам помочь. Прошу Вас прислать всю необходимую информацию на почту и написать что необходимо выполнить.
      Я посмотрю описание к заданиям и напишу Вам стоимость и срок выполнения. Информацию нужно прислать на почту info@kapproekt.ru

      Ответить
  15. Эдуард

    Решить тест 25 вопросов, дистанционное обучение по метрологии. Выполнить курсовую работу.

    Ответить
    1. Татьяна автор

      Эдуард, здравствуйте! Мы можем Вам помочь. Прошу Вас прислать всю необходимую информацию на почту и написать что необходимо выполнить.
      Я посмотрю описание к заданиям и напишу Вам стоимость и срок выполнения. Информацию нужно прислать на почту info@kapproekt.ru

      Ответить
  16. Руслана

    Добрый день. Нужна помощь по 8 дисциплинам, а именно сделать самостоятельные работы и ответить на тестовые вопросы и практические задания с входом в личный кабинет.

    Ответить
    1. Татьяна автор

      Руслана, здравствуйте! Мы можем Вам помочь. Прошу Вас прислать всю необходимую информацию на почту и написать что необходимо выполнить.
      Я посмотрю описание к заданиям и напишу Вам стоимость и срок выполнения. Информацию нужно прислать на почту info@kapproekt.ru

      Ответить
Заявка на расчет